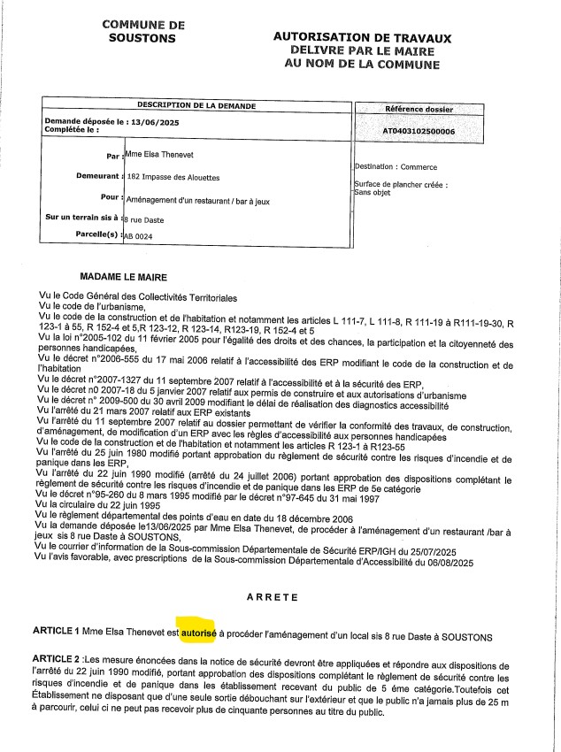
Projet : Bar à jeux "Les Tuiles" — Soustons (40)
Projets ERP réalisés Landes
Mission : L'expertise technique au service du loisir
Aménagement d’un ERP de 85 m² avec une gestion rigoureuse de la sécurité incendie et de l’accessibilité PMR. Un dossier d'aménagement (AT) complet qui harmonise conformité technique et convivialité pour un lieu de vie intergénérationnel unique dans les Landes.
Avis favorable Autorisation de Travaux ERP Soustons Landes
Projet : Cave à Vin « La Cave à Pépites » – Capbreton
Mission : L’optimisation des flux en centre-ville ancien
Projets ERP réalisés Landes
Transformation d’un local de 110 m² avec une problématique majeure de stockage de liquides inflammables. Expertise pointue dans la gestion des dérogations et création d’un mobilier sur mesure inclusif pour transformer les contraintes du bâti en atouts design.
Projet : Cabinet de Kinésithérapie – Hossegor, Landes
Projets ERP réalisés Landes
La rigueur du secteur médical (Type U)
Organisation ergonomique d’un espace de soin de 86 m² où chaque centimètre compte. De la conformité du plateau technique à la création d’un mobilier d’accueil spécifique, ce projet démontre une maîtrise absolue des normes d’accessibilité universelle et du confort patient.
Cabinet -kiné-pmr-type-u-
La suite du projet ici: Aménagement Cabinet Médical
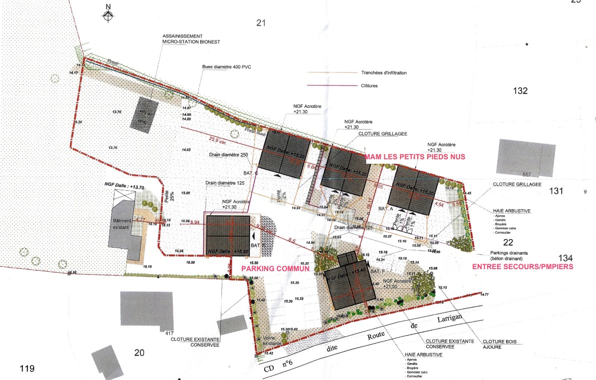
Projet : MAM « Les Petits Pieds Nus » – Seignosse, Landes
Projets ERP réalisés Landes
Sécurité absolue pour le public fragile
Transformation complexe d’une micro-crèche en ERP de Type R. Une intervention stratégique incluant la validation APAVE, la mise en place de dispositifs d’alerte sensorielle et la création d’une issue de secours inédite pour garantir une sécurité totale sans compromis esthétique.
Maison-Assistantes-Maternelles-
La suite du projet ici: Aménagement d’une MAM
Projet : Miel Coffee Shop – Capbreton, Landes
Projets ERP réalisés Landes
Le design « Vintage Pop » validé
Aménagement d’un coffee shop de 50 m² sur deux niveaux. Un projet où l’audace créative (photo spot, identité forte) rencontre la technique (dossier AT accepté, dérogations escalier), prouvant que la norme peut sublimer l’expérience client.
amenagement-petit-espace-restauration-capbreton.jpg





























